1537 Russel Avenue Riondel, British Columbia V0B 2B0

4 Bedroom 1 Bathroom 1,446 ft2
Ranch Forced Air, See Remarks

$199,000

Riondel is the perfect end of the road community on Kootenay lake. If you are looking for a slower pace of life or a fantastic summer location this is it. This home features 2 bedrooms and a full bath on the main floor the walkout basement features a large bedroom a storage room and an old attached single garage. Needs some work, but is on a great lot in a great location and the price is right! Call your Realtor for an appointment Today! Quick possession is available (id:22574)

Property Details

MLS® Number 10340061
Property Type Single Family
Neigbourhood Crawford Bay / Riondel
Amenities Near By Golf Nearby
Parking Space Total 2
View Type Mountain View

Building

Bathroom Total 1
Bedrooms Total 4
Architectural Style Ranch
Basement Type Full
Constructed Date 1952
Construction Style Attachment Detached
Exterior Finish Other
Flooring Type Mixed Flooring
Heating Type Forced Air, See Remarks
Roof Material Metal
Roof Style Unknown
Stories Total 1
Size Interior 1,446 Ft2
Type House
Utility Water Municipal Water

Parking

Carport
Attached Garage 2

Land

Access Type Easy Access
Acreage No
Land Amenities Golf Nearby
Sewer Septic Tank
Size Irregular 0.26
Size Total 0.26 Ac|under 1 Acre
Size Total Text 0.26 Ac|under 1 Acre
Zoning Type Unknown

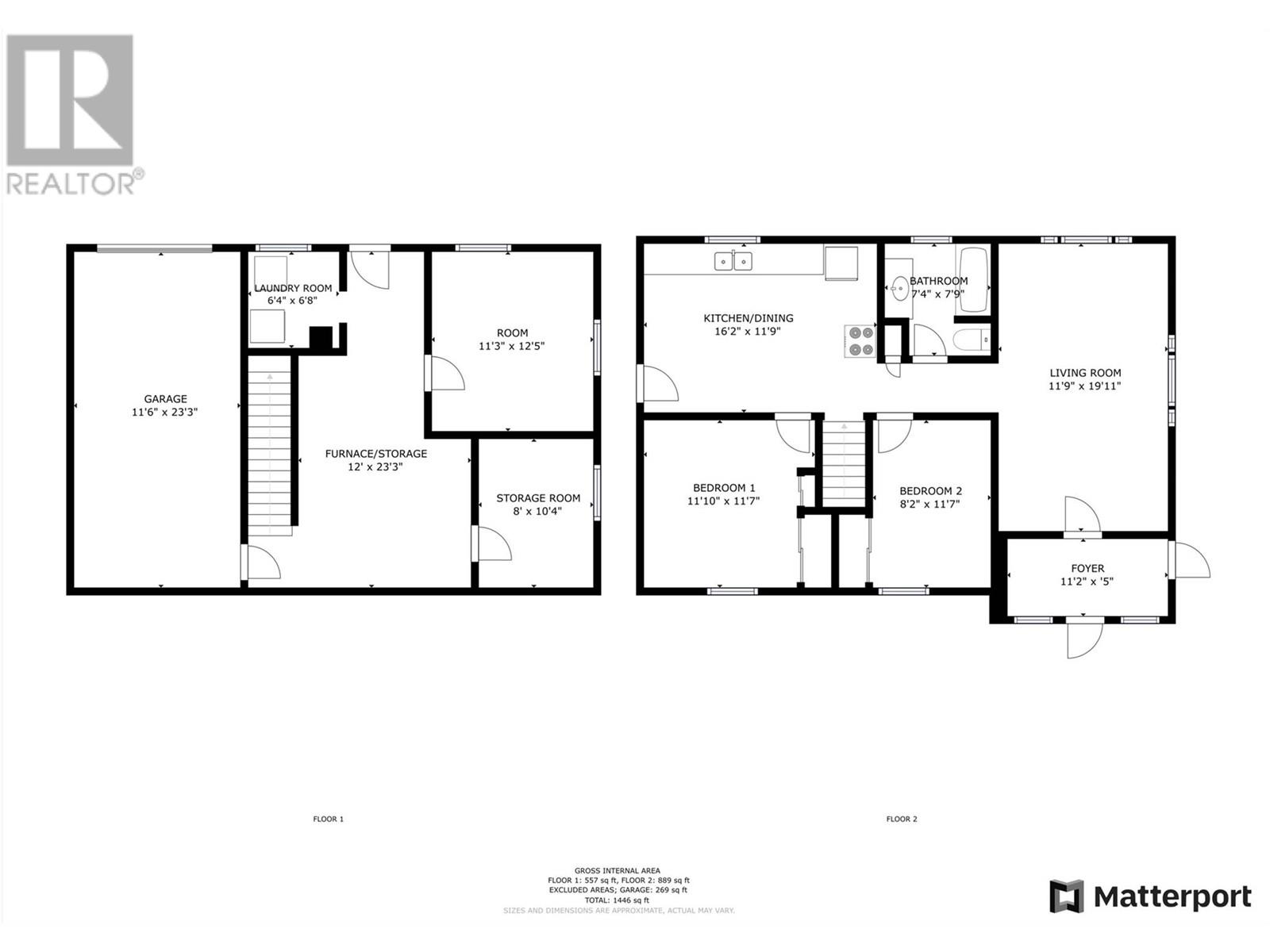
Rooms

Level Type Dimensions
Basement Laundry Room 6'4'' x 6'8''
Basement Storage 8'0'' x 10'4''
Basement Primary Bedroom 11'3'' x 12'5''
Main Level Full Bathroom 7'4'' x 7'9''
Main Level Bedroom 8'2'' x 11'7''
Main Level Bedroom 11'10'' x 11'7''
Main Level Kitchen 16'2'' x 11'9''
Main Level Bedroom 8'2'' x 11'7''
Main Level Living Room 11'9'' x 19'11''
Main Level Foyer 11'2'' x 5'0''

https://www.realtor.ca/real-estate/28057974/1537-russel-avenue-riondel-crawford-bay-riondel

Contact Us

Contact us for more information

Generating Captcha

Sara Malyk

www.saramalyk.com/
www.facebook.com/Saramalykcreston

Malyk Realty
#6-1000 Northwest Blvd.,
Creston, British Columbia V0B 1G6

(250) 435-0071
www.malykrealty.com/

Your Favourites

 

No Favourites Found

 

We and our partners use technologies, such as cookies, and process personal data, such as IP addresses and cookie identifiers, measure the performance of ads and content, and derive insights about the audiences who saw content. You can read more here about our usage of cookies.