16242 Selkirk Road Crawford Bay, British Columbia V0B 1E0

3 Bedroom 2 Bathroom 2,400 ft2
Ranch Baseboard Heaters Sloping, Wooded Area

$499,000

16242 Selkirk Rd is a 2011-built home which delivers the modern comforts and conveniences of a newer build and offers 3 bedrooms and 2 bathrooms on 0.84 of an acre. The bright open-concept main living area features vaulted ceilings and abundant natural light. Granite countertops, a spacious, newly resurfaced deck with access from the living room and primary bedroom, and a walkout basement with bathroom rough-in add to the home’s appeal. The lower level currently provides excellent flex space for hobbies, crafts, or future development. Set in a quiet and peaceful location, this property also offers convenient access to nearby recreation and community amenities. (id:22574)

Property Details

MLS® Number 10384097
Property Type Single Family
Neigbourhood Crawford Bay / Riondel
Amenities Near By Golf Nearby, Recreation, Schools
Community Features Rural Setting
Features Treed, Irregular Lot Size, Sloping
Parking Space Total 4
View Type Mountain View

Building

Bathroom Total 2
Bedrooms Total 3
Architectural Style Ranch
Basement Type Full
Constructed Date 2011
Construction Style Attachment Detached
Flooring Type Laminate, Mixed Flooring
Heating Fuel Electric
Heating Type Baseboard Heaters
Roof Material Asphalt Shingle
Roof Style Unknown
Stories Total 2
Size Interior 2,400 Ft2
Type House
Utility Water Community Water User's Utility

Land

Access Type Easy Access
Acreage No
Land Amenities Golf Nearby, Recreation, Schools
Landscape Features Sloping, Wooded Area
Sewer Septic Tank
Size Irregular 0.84
Size Total 0.84 Ac|under 1 Acre
Size Total Text 0.84 Ac|under 1 Acre

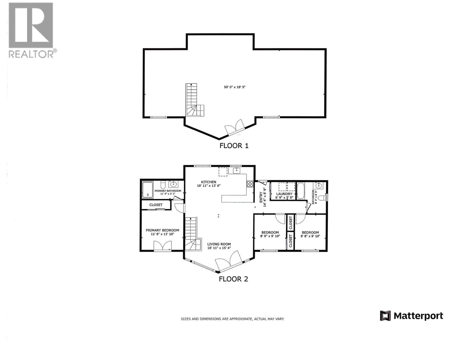
Rooms

Level Type Dimensions
Basement Unfinished Room 50' x 18'5''
Main Level 4pc Bathroom Measurements not available
Main Level Bedroom 8'8'' x 9'10''
Main Level Bedroom 8'9'' x 9'10''
Main Level 4pc Ensuite Bath Measurements not available
Main Level Primary Bedroom 11'8'' x 13'10''
Main Level Living Room 18'11'' x 15'4''
Main Level Dining Room 9'6'' x 9'8''
Main Level Kitchen 9'6'' x 9'1''

Utilities

Natural Gas Not Available
Water At Lot Line

https://www.realtor.ca/real-estate/29631335/16242-selkirk-road-crawford-bay-crawford-bay-riondel

Contact Us

Contact us for more information

Generating Captcha

Chris Noakes

(250) 354-7689
www.chrisnoakes.ca/

Royal LePage Rosling Realty
593 Baker Street
Nelson, British Columbia V1L 4J1

(250) 352-3581
(250) 352-5102

Your Favourites

 

No Favourites Found

 

We and our partners use technologies, such as cookies, and process personal data, such as IP addresses and cookie identifiers, measure the performance of ads and content, and derive insights about the audiences who saw content. You can read more here about our usage of cookies.