641 7th Avenue Fernie, British Columbia V0B 1M0

3 Bedroom 4 Bathroom 3,711 ft2
Contemporary Fireplace Central Air Conditioning Forced Air

$1,985,000

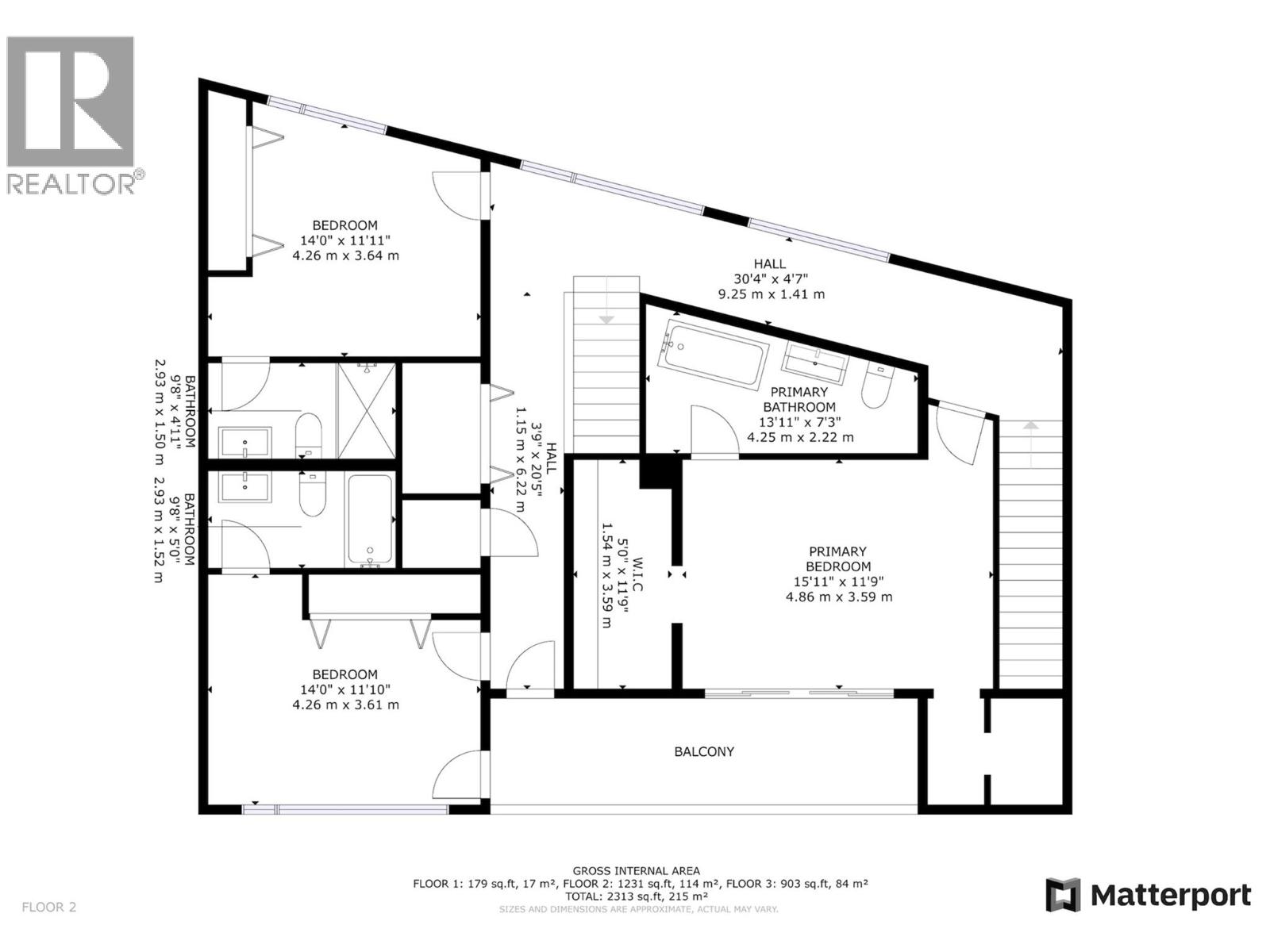
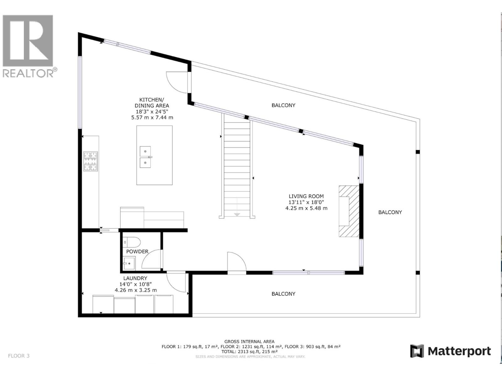
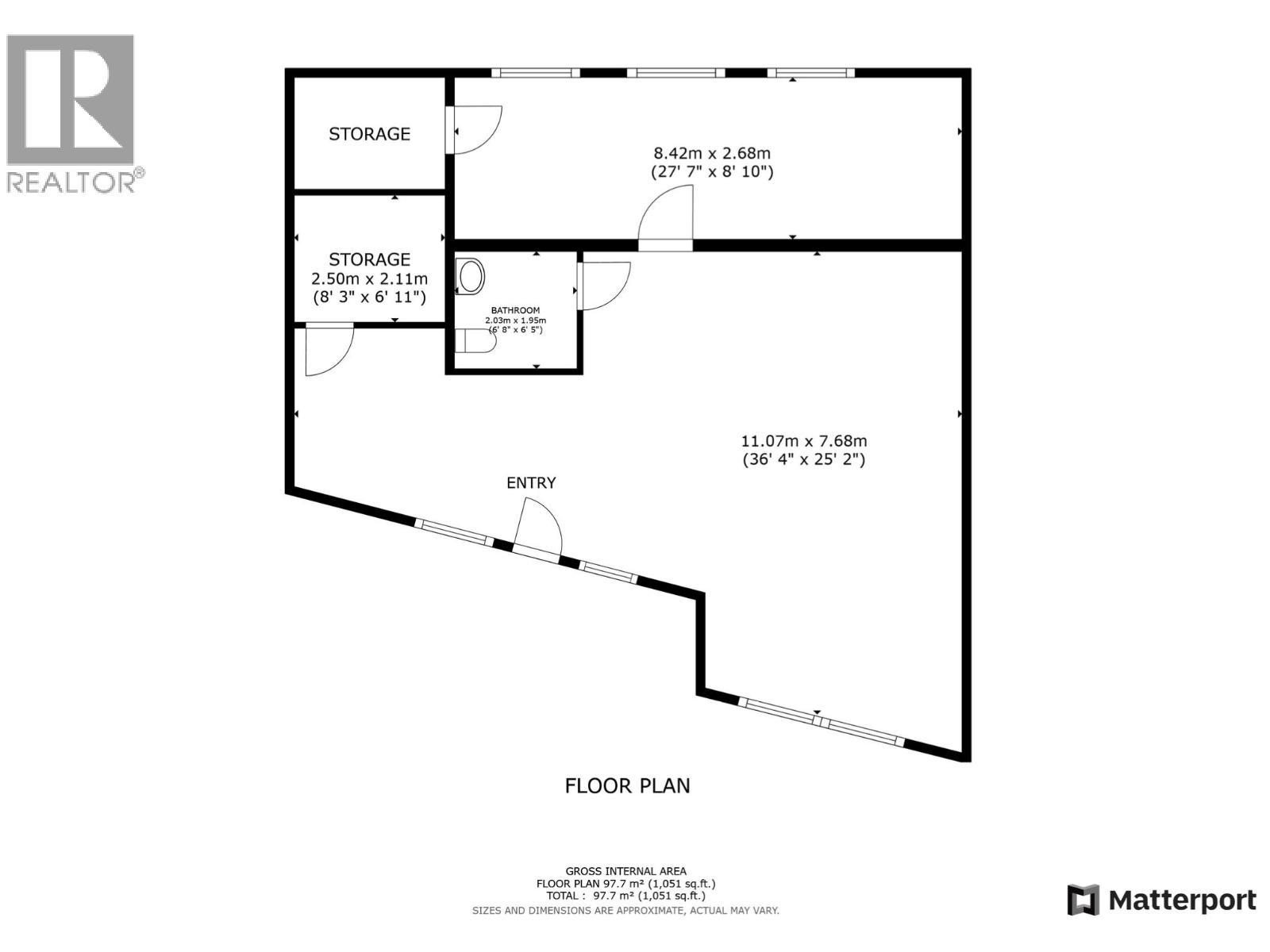
Opportunity knocks! Located in the heart of Fernie BC, this unique property, built in 2017 showcases inspired modern design. Let's explore top down. The topmost floor offers penthouse feels with unobstructed 180-degree views over the town through the expansive windows from an open plan living space bathed in natural light day long. You’ll spend all your time up here, enjoying your time beside the wood-burning fireplace or on the huge hot-tub-ready deck that wraps around 3 sides of this level. You’ll appreciate the dedicated dining space, well-appointed kitchen with walk-in pantry and conveniently located laundry and powder room on this level. Below, on the middle floor you’ll discover 3 bedrooms, all with their own full ensuite bathroom. The primary bedroom offers views of Mt Fernie through double doors or from it’s own private balcony. The lower level of this home comprises of the entry to the residence and a fully self-contained 1400 sqft commercial space. This property is zoned Commercial Highway offering a long list of uses: run your own business or earn revenue providing highly sort after commercial rental space. The commercial occupants will be vacating upon possession providing a blank slate for what YOU envision for this space! Other features include: air conditioning, large side yard for off-street parking or other, full footprint crawl space = storage++, exceptional highway exposure for business potential and MORE!. Book a tour! Cross posted with MLS#10335227 (id:22574)

Property Details

MLS® Number 10335224
Property Type Single Family
Neigbourhood Fernie
Features Two Balconies
View Type Mountain View

Building

Bathroom Total 4
Bedrooms Total 3
Appliances Refrigerator, Cooktop, Dishwasher, Dryer, Hood Fan, Washer, Oven - Built-in
Architectural Style Contemporary
Basement Type Crawl Space, Full
Constructed Date 2017
Construction Style Attachment Detached
Cooling Type Central Air Conditioning
Exterior Finish Cedar Siding, Other
Fireplace Fuel Wood
Fireplace Present Yes
Fireplace Total 1
Fireplace Type Conventional
Half Bath Total 1
Heating Type Forced Air
Roof Material Metal
Roof Style Unknown
Stories Total 3
Size Interior 3,711 Ft2
Type House
Utility Water Municipal Water

Land

Acreage No
Sewer Municipal Sewage System
Size Irregular 0.12
Size Total 0.12 Ac|under 1 Acre
Size Total Text 0.12 Ac|under 1 Acre
Zoning Type Unknown

Rooms

Level Type Dimensions
Second Level Utility Room 7' x 4'2''
Second Level Full Ensuite Bathroom Measurements not available
Second Level Bedroom 13'6'' x 9'6''
Second Level Full Ensuite Bathroom 9'8'' x 5'
Second Level Bedroom 14'2'' x 8'
Second Level Other 14' x 3'6''
Second Level Full Ensuite Bathroom 11'9'' x 5'
Second Level Primary Bedroom 15'10'' x 12'6''
Third Level Laundry Room 10'3'' x 5'6''
Third Level Pantry 11'11'' x 5'6''
Third Level Dining Room 14' x 13'
Third Level Kitchen 14'6'' x 10'
Third Level Living Room 14' x 15'10''
Main Level 2pc Bathroom Measurements not available
Main Level Utility Room 8'4'' x 4'
Main Level Laundry Room 8'4'' x 7'
Main Level Other 31' x 9'11''
Main Level Other 37' x 22'
Main Level Foyer 26'5'' x 6'4''

https://www.realtor.ca/real-estate/27912046/641-7th-avenue-fernie-fernie

Contact Us

Contact us for more information

Generating Captcha

Jacqueline Fieldhouse
Personal Real Estate Corporation

(250) 423-1194
www.soldinfernie.com/

RE/MAX Elk Valley Realty
1241 7th Avenue
Fernie, British Columbia V0B 1M5

(250) 423-4444
www.fernielistings.com/

Your Favourites

 

No Favourites Found

 

We and our partners use technologies, such as cookies, and process personal data, such as IP addresses and cookie identifiers, measure the performance of ads and content, and derive insights about the audiences who saw content. You can read more here about our usage of cookies.